Radcliff Cottage, Millview Road, Malahide (plus site with FPP)
Radcliff Cottage, Millview Road, Malahide (plus site with FPP)
Price
€950,000
Type
Semi-Detached House
Status
For Sale
BEDROOMS
3
BATHROOMS
2
BER
BER No: 113206395
EPI: 196.25






























































Description
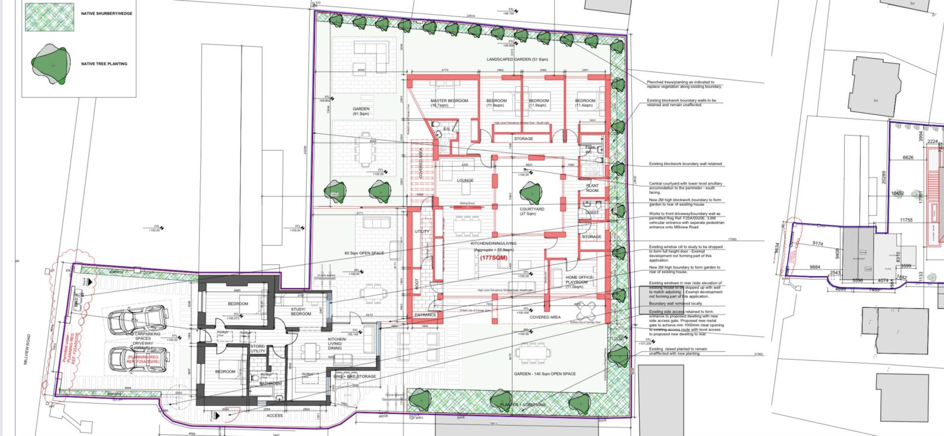
A rare opportunity in Malahide: a fully renovated period cottage on a 0.25 acre site with full planning permission for a detached contemporary four-bedroom courtyard home of approximately 177 sq.m (1,905 sq.ft.)
Whether you wish to extend the existing cottage, create a multi-generational home, or build your dream residence from scratch, this property offers uncommon flexibility in a premier location.
Outdoor Space & Privacy
• Private, south-facing rear garden with new deck, external lighting and outdoor sockets
• Expansive green directly across the road ensures privacy and open views
• Off-street parking for up to three cars
• Ample scope for extension or a striking new build
Planning Permission Your Dream Home Awaits
Full planning permission for a four-bedroom, contemporary home on the 0.25 acre site, featuring:
• Internal courtyard
• Kitchen, dining, and living spaces
• Two cosy living areas, boot room, and utility
• Three private garden areas of 140 sq.m., 91 sq.m., and 51 sq.m.
• Complete privacy with no overlooking neighbours
This is an exceptional chance to create a showpiece home in Malahide, with potential to explore extensions beyond the current planning permission.
Accommodation Highlights
Entrance Hallway:
• Tiled floors with a feature faux-exposed brick wall and inset storage
• Access to attic storage with large VELUX window and spot lighting
Open-Plan Living & Dining:
• Contemporary fully-fitted kitchen with modern appliances
• Dining space opening directly onto deck and garden
• Cosy living areas and snug for relaxed family life
Bedrooms:
• Three spacious doubles, versatile for children, guests, or home office
• Finished with high-quality laminate flooring and Colourtrend paint
Bathroom
• Contemporary family bathroom with large bath, rainforest shower
• Stylish tiling, recessed lighting, heated towel rail and fitted storage
Upgrades & Features
• Triple-glazed, energy-efficient windows
• Composite front door with high-security locking system
• Fully insulated and replastered (2023)
• Gas central heating with new combi boiler and Nest thermostat (installed 2023)
• High-quality finishes throughout
Location & Lifestyle
Radcliff Cottage is perfectly situated in Malahide village, with everything within walking distance:
• Excellent primary schools
• Malahide DART and bus services
• Boutique shops, cafés, and restaurants
• Scenic walks near Malahide Castle & Demesne and the estuary
Summary
Radcliff Cottage is more than a home - it`s a rare lifestyle opportunity. Move straight in and enjoy the charm of a fully renovated cottage, or take advantage of the full planning permission to create a spectacular new residence in one of Malahide`s most coveted locations. This is a property where character, modern living, and visionary development potential intersect.
Features
- With Planning Permission F25A/0239E
- Beautifully renovated
- Fully insulated, plastered and new boiler 2023
- Triple glazed noise reduction windows
- South facing private rear garden
- Malahide castle and demesne within walking distance
- Broadwater estuary coastal walks
- Train/DART station for easy commuting
Accommodation
Entrance Hall
Spacious light filled entrance hall withVelux leading through to the open plan Living / Kitchen/Dining space. Feature faux exposed brick wall, inset storage, recessed lighting, tiled floor.
Living Room - 5m (16'5") x 2.73m (8'11")
The heart of the home flooded with natural light, bespoke TV wall, inset spotlights and laminate flooring.
Kitchen / Breakfast Room - 3.07m (10'1") x 3.73m (12'3")
Contemporary fitted kitchen with wall and floor units, tiled splashback with space and plumbing for appliances.
The dining area has direct access to the deck and south facing garden perfect for alfresco dining or an oasis to relax.
Main Bedroom - 3m (9'10") x 4.52m (14'10")
Large main bedroom with window to front with plantation shutters, space for wardrobes in both alcoves, laminate flooring.
Bedroom Two (front) - 3.68m (12'1") x 3.07m (10'1")
Overlooking the front, with plantation shutters, inset spotlights, laminate flooring.
Bedroom Three (rear) - 2.42m (7'11") x 3.79m (12'5")
Located to the rear overlooking the garden ideal as a guest room or home office. Inset spotlights and laminate flooring.
Bathroom - 3.75m (12'4") x 2.42m (7'11")
Beautifully designed with subway tiling, large bath having centrally positioned tap,s separate double shower cubicle with rainfall shower head. Wash hand basin with drawer under and fitted mirror over, WC, medicine cabinet and heated towel rail.
